News and Views
Premium Supermarket Retail Branding and Design.
Working in close partnership with the former owners of Kopeika supermarkets and the founders of Fix Price, CampbellRigg was commissioned to develop Свеж & Fresh, a new premium supermarket brand.
The brief positioned the brand as a leading urban food destination, uniting exceptional fresh food, carefully curated global assortments, and best-in-class service. Its strategy combines experience-led store design, a powerful premium private-label portfolio, and deep local cultural relevance to drive customer loyalty, increase spend per visit, and deliver sustainable long-term commercial performance.

Свеж & Fresh (Svezh & Fresh), translated from Russian as “Fresh & Fresh,” deliberately combines Cyrillic and Latin typography to immediately communicate the international sensibility of a sophisticated fresh food culture. The assortment is carefully curated around local tastes, dietary preferences, and seasonal behaviours, while simultaneously inviting customers to explore a world of global food discovery.


Format-efficient premium retail strategies designed to increase sales performance.
The Свеж & Fresh brand plans to position itself as Moscow’s leading premium urban food destination, celebrated for its exceptional fresh organic fruit, natural vegetables, and high-quality food offering. Designed for affluent residents, professionals, and international consumers who demand quality, speed, trust, and inspiration, the brand operates at the intersection of premium grocery, convenience, and lifestyle, redefining the supermarket not merely as a place to shop, but as a daily lifestyle partner.
Its commercial strategy prioritises authority, curation, and provenance over price-led promotion. Storytelling across food culture, local sourcing, health, sustainability, and craftsmanship builds emotional connection and long-term loyalty. A strong premium private-label portfolio strengthens differentiation and margin, while digital engagement and personalised CRM systems drive repeat visitation and lifetime value.

The store environment is calm, intuitive, and experience-led, with fresh food serving as both emotional and commercial anchor. Carefully zoned layouts guide customers through bakery, produce, deli, patisserie, and ready-to-eat destinations, supported by food-to-go zones for fast urban missions. Merchandising balances theatre with efficiency, curated assortments, premium materials, restrained signage, and live preparation areas maximise impact while maintaining operational discipline.

This model scales premium experience without sacrificing productivity, supporting everyday convenience, destination shopping, and food-to-go missions within a single flexible format, delivering measurable commercial performance in high-pressure urban markets. Above: The fresh vegetables graphic with sub brand - "ЗДОРОВЫЙ ВЫБОР" translates as "Healthy Choice"

Why It Fits: Свеж & Fresh aims to succeed in the Moscow city-centre context by combining premium positioning with operational discipline. It scales quality rather than excess and delivers relevance through curated range, efficient layouts, and consistent execution across daily convenience, special-occasion shopping, and food-to-go missions.


The Strategic Solution:
Свеж & Fresh adopts an experience-led, data-driven format that seamlessly integrates brand, design, and commercial execution. Fresh food functions as the strategic anchor, supported by flexible zoning, premium merchandising, food-to-go ecosystems, and engaging digital touchpoints. Personalised CRM, curated local assortments, and premium private labels reinforce loyalty and margin. This integrated model drives consistent growth across convenience, destination, and urban food missions while ensuring operational efficiency, scalability, and enduring brand relevance.

Customer Experience Trends - Phygital:
Next-generation supermarkets are inherently phygital. AI personalisation, predictive availability, digital loyalty, and frictionless checkout operate invisibly, while physical environments deliver emotion through fresh food theatre, live preparation, intuitive layouts, and immersive storytelling. Customers expect speed, relevance, inspiration, and trust at every touchpoint. Flexible formats, localised assortments, bold visual merchandising, and digitally informed design are essential to increase dwell time, basket size, loyalty, and lifetime value.

Grilled Chicken quote reads: "One of the most wonderful things in life is that, whatever we do, we can stop and make time for food." Ciabatta Sandwich quote reads: "Never work before breakfast; if you have to work before breakfast, eat first."

Свеж & Fresh reflects Moscow’s sophisticated food culture with a highly curated assortment tailored to local tastes, dietary preferences, and seasonal behaviour, while enabling global discovery. The experience feels personal, knowledgeable, and reassuring, essential in a premium urban market where choice is abundant and expectations are high. Above: Fresh rasberries graphic with sub brand - "ЗДОРОВЫЙ ВЫБОР" translates as "Healthy Choice".





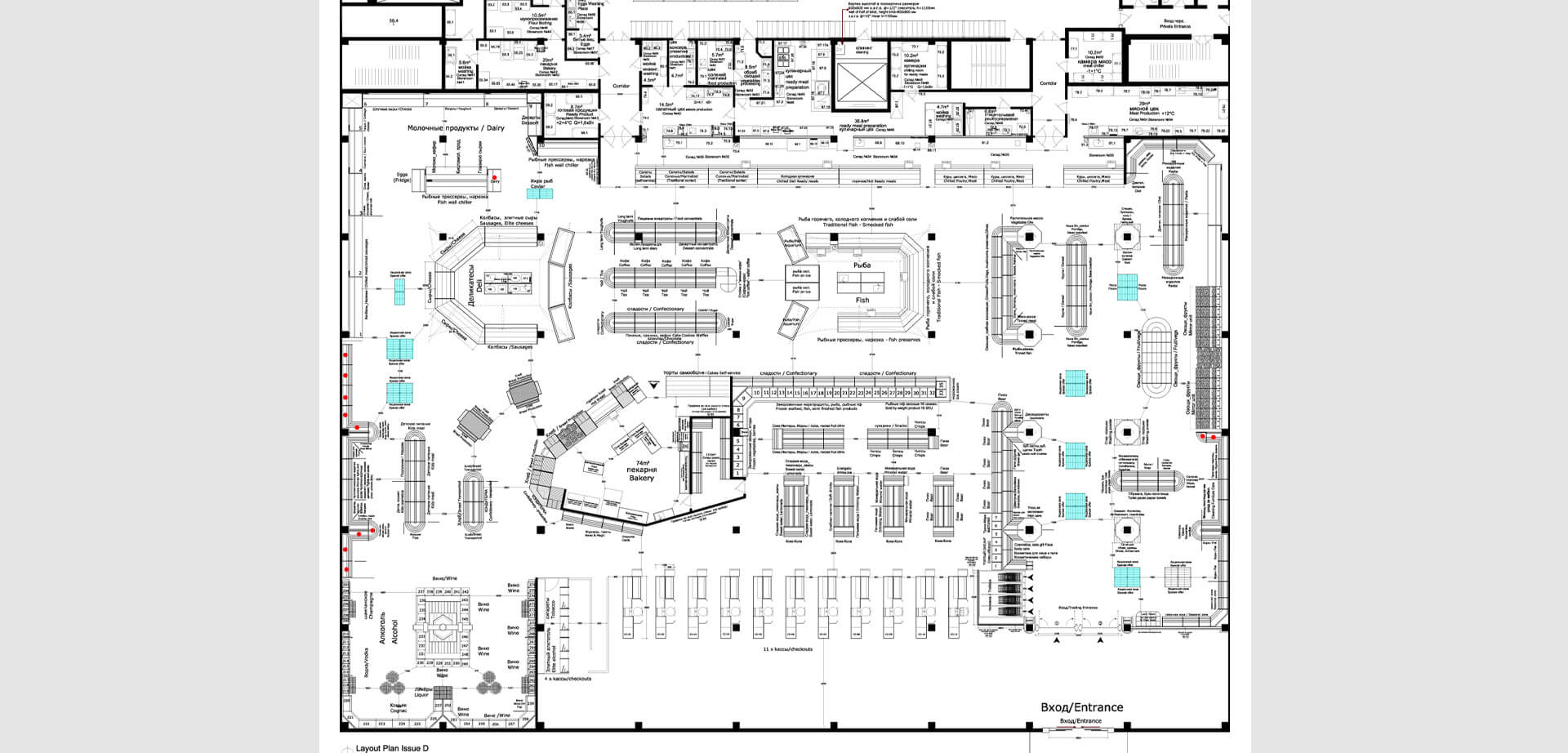
Concept: This premium convenience format is designed for food lovers, creating an enhanced shopping "experience" with a focus on premium products and varied displays, departing from traditional supermarket layouts.


Product Assortment: The store planning, shown above, presents a carefully curated selection of premium essentials: fresh fruits and vegetables, high-quality dairy and bakery items, gourmet snacks, ready-to-eat meals, beverages, and select household staples. The assortment balances everyday convenience with indulgent treats, highlighting freshness, quality, and brand consistency. A curated wine collection includes top wines and champagnes from renowned regions worldwide.

As Europe’s retail landscape evolves in 2026 and 2027, success in premium supermarkets will depend on blending operational agility with consumer-centric innovation. Leading premium supermarkets will deepen ties with local suppliers, prioritizing seasonal and organic products to align with European consumers’ sustainability expectations. Efficiency gains will come from lean operations and optimized layouts, while loyalty ecosystems reinforce local brand authority. Success will be measured in both commercial outcomes, sales, ROIC, and productivity, and social impact through ethical sourcing and carbon-conscious practices.
Key trend: Sustainability and locality as strategic differentiators.

Our Four-Step Process:
1. Book a consultation call for free
2. Co-create a bespoke brief
3. We execute the creative work fast
4. You see sales, brand loyalty and market share uplift

Schedule your consultation today and receive a free quote.
Cost-Effective Excellence:
Our pricing structure is highly competitive, offering exceptional value without compromising on quality or creativity.
Rapid Execution:
We move fast. From concept to implementation, our agile team ensures your project is delivered on time and to the highest standards.
Multidisciplinary Expertise:
Our team brings together seasoned brand strategists, architects, interior designers, and graphic designers, collaborating to create seamless, end-to-end brand environments.
Global Reach, Local Insight:
With successful projects delivered across Europe, the Middle East, and Asia, we combine international experience with local market understanding.
Scalable Project Delivery:
Whether it's a flagship city supermarket or an urban convenience store, we manage and execute projects of all sizes, efficiently and effectively.
Proven Track Record:
Our designs evolve branch networks from purely transactional spaces into experiential, relationship-focused brand environments, enhancing engagement, elevating customer experience, and driving tangible business results.
Full-Service Creative Agency:
From rebranding and marketing campaigns to spatial design and rollout, we provide an integrated service tailored to your goals.




