Noticias y Opiniones
Branding y Diseño de Retail para Supermercados Premium
Trabajando en estrecha colaboración con los antiguos propietarios de los supermercados Kopeika y los fundadores de Fix Price, CampbellRigg fue encargado de desarrollar Свеж & Fresh (Svezh & Fresh), una nueva marca de supermercado premium.
El brief posicionó la marca como un destino urbano líder en alimentación, combinando productos frescos excepcionales, surtidos globales cuidadosamente seleccionados y un servicio de primer nivel. Su estrategia integra diseño de tienda basado en la experiencia, un sólido portafolio de marcas propias premium y una profunda relevancia cultural local para impulsar la fidelización de clientes, aumentar el gasto por visita y garantizar un rendimiento comercial sostenible a largo plazo.

Свеж & Fresh (Svezh & Fresh), traducido del ruso como “Fresh & Fresh”, combina deliberadamente tipografía cirílica y latina para comunicar de inmediato el carácter internacional de una cultura gastronómica sofisticada basada en la frescura. El surtido se construye cuidadosamente en torno a los gustos locales, las preferencias dietéticas y los comportamientos estacionales, al tiempo que invita al cliente a descubrir un mundo de experiencias gastronómicas globales.


Estrategias premium de retail eficientes en formato para impulsar el rendimiento de ventas.
La marca Свеж & Fresh planea posicionarse como el principal destino urbano premium de alimentación en Moscú, reconocido por su excepcional oferta de frutas orgánicas frescas, verduras naturales y productos de alta calidad. Diseñada para residentes de alto poder adquisitivo, profesionales y consumidores internacionales que exigen calidad, rapidez, confianza e inspiración, la marca opera en la intersección entre supermercado premium, conveniencia y estilo de vida, redefiniendo el supermercado no solo como un lugar de compra, sino como un socio cotidiano de estilo de vida.
Su estrategia comercial prioriza la autoridad de marca, la curaduría y el origen por encima de las promociones basadas en precio. El storytelling en torno a la cultura gastronómica, el abastecimiento local, la salud, la sostenibilidad y la artesanía genera conexión emocional y fidelidad a largo plazo. Un sólido portafolio de marcas propias premium refuerza la diferenciación y el margen, mientras que la interacción digital y los sistemas CRM personalizados impulsan la recurrencia y el valor del ciclo de vida del cliente.

El entorno de la tienda es calmado, intuitivo y orientado a la experiencia, con los productos frescos como ancla emocional y comercial. Layouts cuidadosamente zonificados guían al cliente a través de panadería, frutas y verduras, charcutería, pastelería y áreas de comida preparada, respaldados por zonas de food-to-go para misiones urbanas rápidas. El merchandising equilibra teatralidad y eficiencia: surtidos curados, materiales premium, señalética contenida y áreas de preparación en vivo maximizan el impacto manteniendo la disciplina operativa.

Este modelo escala la experiencia premium sin sacrificar productividad, apoyando compras cotidianas, visitas de destino y misiones de food-to-go dentro de un único formato flexible, entregando un rendimiento comercial medible en mercados urbanos de alta presión.
Arriba: Gráfico de «Свежие овощи» que se traduce como verduras frescas con la submarca «ЗДОРОВЫЙ ВЫБОР», que se traduce como Healthy Choice.

Por qué funciona: Свеж & Fresh busca triunfar en el contexto del centro urbano de Moscú combinando posicionamiento premium con disciplina operativa. Escala la calidad en lugar del exceso y genera relevancia mediante surtidos curados, layouts eficientes y una ejecución consistente en las misiones de conveniencia diaria, compras ocasionales y food-to-go.


La solución estratégica:
Свеж & Fresh adopta un formato orientado a la experiencia y basado en datos que integra de forma fluida marca, diseño y ejecución comercial. Los productos frescos actúan como ancla estratégica, apoyados por zonificación flexible, merchandising premium, ecosistemas de food-to-go y puntos de contacto digitales atractivos. El CRM personalizado, los surtidos locales curados y las marcas propias premium refuerzan la fidelidad y el margen. Este modelo integrado impulsa un crecimiento consistente en las misiones de conveniencia, destino y alimentación urbana, garantizando eficiencia operativa, escalabilidad y relevancia de marca a largo plazo.

Tendencias de experiencia del cliente - Phygital:
Los supermercados de próxima generación son inherentemente phygital. La personalización mediante IA, la disponibilidad predictiva, la fidelización digital y el pago sin fricciones operan de forma invisible, mientras que los entornos físicos generan emoción a través de la teatralidad de los frescos, la preparación en vivo, los layouts intuitivos y el storytelling inmersivo. Los clientes esperan velocidad, relevancia, inspiración y confianza en cada punto de contacto. Los formatos flexibles, los surtidos localizados, el visual merchandising impactante y el diseño informado digitalmente son esenciales para aumentar el tiempo de permanencia, el tamaño del ticket, la fidelidad y el valor del cliente a largo plazo.

La cita gráfica del pollo a la parrilla dice: «Una de las cosas más maravillosas de la vida es que, hagamos lo que hagamos, podemos parar y dedicar tiempo a comer». La cita del sándwich ciabatta dice: «Nunca trabajes antes del desayuno; si tienes que trabajar antes, come primero».

Свеж & Fresh refleja la sofisticada cultura gastronómica de Moscú a través de un surtido altamente curado, adaptado a los gustos locales, las preferencias dietéticas y el comportamiento estacional, al tiempo que permite el descubrimiento de propuestas gastronómicas globales. La experiencia se percibe personal, experta y tranquilizadora, algo esencial en un mercado urbano premium donde la oferta es abundante y las expectativas son elevadas. Arriba: Gráfico de frambuesas frescas con la submarca «ЗДОРОВЫЙ ВЫБОР», que se traduce como «Elección Saludable».





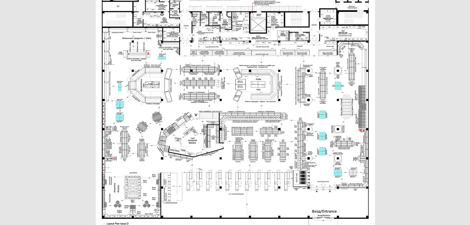
Concepto: Este formato premium de conveniencia está diseñado para amantes de la gastronomía, creando una experiencia de compra mejorada con un enfoque en productos premium y presentaciones variadas, alejándose de los layouts tradicionales de supermercado.


Surtido de productos: La planificación de la tienda, mostrada arriba, presenta una cuidada selección de esenciales premium: frutas y verduras frescas, productos lácteos y de panadería de alta calidad, snacks gourmet, comidas listas para consumir, bebidas y una selección de artículos básicos para el hogar. El surtido equilibra la conveniencia diaria con momentos de indulgencia, destacando la frescura, la calidad y la coherencia de marca. Una cuidada colección de vinos incluye grandes vinos y champanes de regiones de prestigio de todo el mundo.

A medida que el panorama del retail europeo evoluciona en 2026 y 2027, el éxito de los supermercados premium dependerá de la combinación de agilidad operativa con innovación centrada en el consumidor. Los principales supermercados premium reforzarán sus vínculos con proveedores locales, priorizando productos de temporada y orgánicos para alinearse con las expectativas de sostenibilidad de los consumidores europeos. Las mejoras de eficiencia surgirán de operaciones ágiles y layouts optimizados, mientras que los ecosistemas de fidelización reforzarán la autoridad de marca a nivel local. El éxito se medirá tanto en resultados comerciales, ventas, ROIC y productividad, como en impacto social, a través de prácticas de abastecimiento ético y estrategias conscientes del carbono.
Tendencia clave: La sostenibilidad y la cercanía como diferenciadores estratégicos.

Nuestro proceso en cuatro pasos:
1. Reserva una llamada de consulta gratuita
2. Co-creamos un brief a medida
3. Ejecutamos el trabajo creativo con rapidez
4.Obtienes un incremento en ventas, fidelidad de marca
y cuota de mercado

Agenda tu consulta hoy y recibe un presupuesto gratuito.
Excelencia Rentable:
Nuestra estructura de precios es altamente competitiva, ofreciendo un valor excepcional sin comprometer la calidad ni la creatividad.
Ejecución Rápida:
Nos movemos rápido. Desde el concepto hasta la implementación, nuestro equipo ágil garantiza que tu proyecto se entregue a tiempo y con los más altos estándares.
Experiencia Multidisciplinar:
Nuestro equipo reúne a estrategas de marca, arquitectos, diseñadores de interiores y diseñadores gráficos con amplia experiencia, colaborando para crear entornos de marca integrales y coherentes de principio a fin.
Alcance Global, Visión Local:
Con proyectos exitosos en Europa, Oriente Medio y Asia, combinamos experiencia internacional con un profundo conocimiento de los mercados locales.
Entrega de Proyectos Escalable:
Ya sea un hipermercado insignia, un supermercado urbano o una tienda de conveniencia, gestionamos y ejecutamos proyectos de cualquier tamaño de forma eficiente y efectiva.
Trayectoria Comprobada:
Nuestros diseños transforman redes de tiendas de espacios puramente transaccionales en entornos de marca experienciales y centrados en la relación, aumentando el engagement, elevando la experiencia del cliente y generando resultados de negocio tangibles.
Agencia Creativa Integral:
Desde el rebranding y las campañas de marketing hasta el diseño espacial y el despliegue en red, ofrecemos un servicio integrado adaptado a tus objetivos.




