Свеж & Fresh Premium Supermarket Retail Design & Branding
We build effective retail brand strategies and environments.
Innovative. Creative. Experiences.
Driving measurable growth, customer loyalty and competitive advantage, across Europe’s leading city centre retail markets. Award winning design and planning strategies that boosts conversion dwell time performance.
Working in close partnership with the former owners of Kopeika supermarkets and the founders of Fix Price, CampbellRigg was commissioned to develop Свеж & Fresh, a new premium urban supermarket brand designed to redefine everyday grocery into an elevated lifestyle experience.
The brief positioned the brand as a leading urban food destination, uniting exceptional fresh food, carefully curated global assortments, and best-in-class service. Its strategy combines experience-led store design, a powerful premium private-label portfolio, and deep local cultural relevance to drive customer loyalty, increase spend per visit, and deliver sustainable long-term commercial performance.

Свеж & Fresh (Svezh & Fresh), meaning “Fresh & Fresh.” The bold brand identity combines Cyrillic and Latin typography, signaling an international yet locally rooted fresh-food culture.

High impact supermarket store design and retail branding.
Свеж & Fresh is conceived as Moscow’s definitive premium urban food destination, a brand built around exceptional fresh organic fruit, natural vegetables, and a rigorously curated high-quality food offer. Created for affluent city residents, professionals, and international consumers who expect quality, speed, trust, and inspiration, the brand lives at the intersection of premium grocery, convenience, and lifestyle, redefining the supermarket as an everyday lifestyle companion rather than a transactional store.
Its commercial strategy is anchored in authority, curation, and provenance, replacing price-led promotion with meaningful brand value. Rich storytelling across food culture, local sourcing, health, sustainability, and craftsmanship creates deep emotional connection and enduring loyalty. A powerful premium private-label portfolio drives differentiation and margin, while advanced digital engagement and personalised CRM elevate repeat visitation, lifetime value, and long-term commercial performance.


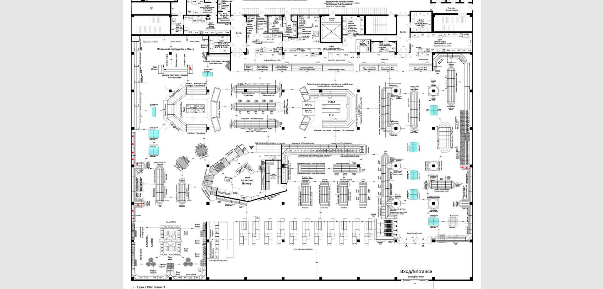
The store environment unfolds as a calm, intuitive, and immersive experience, where fresh food becomes both the emotional heart and commercial engine of the brand. Thoughtfully choreographed zones lead customers seamlessly through bakery, produce, deli, patisserie, and ready-to-eat destinations, while dedicated food-to-go areas support fast, high-frequency urban missions.

The “Healthy Choice” sub-brand highlights product benefits while the merchandising system balances theatre with performance.


Why It Fits: Свеж & Fresh aims to succeed in the Moscow city-centre context by combining premium positioning with operational discipline. It scales quality rather than excess and delivers relevance through curated range, efficient layouts, and consistent execution across daily convenience, special-occasion shopping, and food-to-go missions.


The Strategic Solution:
Свеж & Fresh adopts an experience-led, data-driven format that seamlessly integrates brand, design, and commercial execution. Fresh food functions as the strategic anchor, supported by flexible zoning, premium merchandising, food-to-go ecosystems, and engaging digital touchpoints. Personalised CRM, curated local assortments, and premium private labels reinforce loyalty and margin. This integrated model drives consistent growth across convenience, destination, and urban food missions while ensuring operational efficiency, scalability, and enduring brand relevance.

Visual storytelling elevates product values and highlights nutritional benefits with clarity and confidence.

The Grilled Chicken quote reads: "One of the most wonderful things in life is that, whatever we do, we can stop and make time for food." Ciabatta Sandwich quote reads: "Never work before breakfast; if you have to work before breakfast, eat first."

Fresh rasberries with the sub brand - "Здоровый выбор" translates as "Healthy Choice".





Concept: This premium format is designed for food lovers, creating an enhanced shopping "experience" with a focus on fresh products and varied displays, departing from traditional supermarket layouts.

Product Assortment: The store offers a curated range of premium essentials, fresh produce, artisanal bakery, dairy, gourmet snacks, ready meals, beverages, and household staples, balancing convenience with indulgence.


In 2026–2027, premium supermarkets will combine AI, IoT, and predictive analytics to deliver personalized shopping, blending digital convenience with immersive in-store experiences. Key trend: sustainability and local sourcing.

Our Four-Step Process:
1. Book a free consultation
2. Co-create a bespoke project brief
3. We execute the creative work fast
4. You see sales, brand loyalty and market share uplift

Schedule your consultation today and receive a tailored growth strategy.
Cost-Effective Excellence:
Our pricing structure is highly competitive, offering exceptional value without compromising on quality or creativity.
Rapid Execution:
We move fast. From concept to implementation, our agile team ensures your project is delivered on time and to the highest standards.
Multidisciplinary Expertise:
Our team brings together seasoned brand strategists, architects, interior designers, and graphic designers, collaborating to create seamless, end-to-end brand environments.
Global Reach, Local Insight:
With successful projects delivered across Europe, the Middle East, and Asia, we combine international experience with local market understanding.
Scalable Project Delivery:
Whether it's a flagship city supermarket or an urban convenience store, we manage and execute projects of all sizes, efficiently and effectively.
Proven Track Record:
Our designs evolve branch networks from purely transactional spaces into experiential, relationship-focused brand environments, enhancing engagement, elevating customer experience, and driving tangible business results.
Full-Service Creative Agency:
From rebranding and marketing campaigns to spatial design and rollout, we provide an integrated service tailored to your goals.




